































Maison individuelle à Nîmes
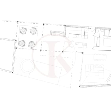
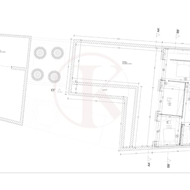
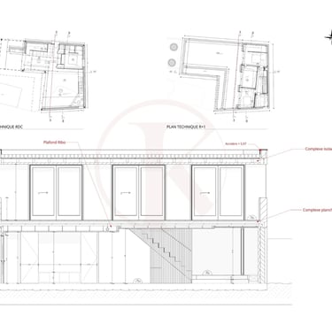
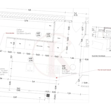
Dans le cadre de ce passionnant projet pour la société MGMO, ma principale responsabilité était de développer des plans techniques détaillés pour communiquer efficacement sa vision architecturale aux différentes entreprises du bâtiment impliquées dans sa réalisation. En collaboration étroite avec Maximilien Gavand, maître d’œuvre, nous avons travaillé pour faire évoluer et affiner le projet. En plus de cette mission, j'ai été spécifiquement chargée de créer des visuels photo-réalistes, ce qui a permis de concrétiser les choix de couleurs et de matériaux avant les décisions finales. Cette approche proactive a permis de mettre en valeur les caractéristiques uniques de cette villa, notamment son parti-pris architectural audacieux, ses variations de hauteurs de plafond et ses choix novateurs en termes d'ambiance. Les résultats obtenus ont abouti à la création d'une architecture intérieure véritablement singulière et mémorable, à la hauteur des attentes et des exigences de la société MGMO.


&


